Immobiliendetails
Reihenmittelhaus für eine kleine Familie
72108 Rottenburg am Neckar
Daten und Fakten zur Immobilie
Baujahr
1925Grundstücksfläche
ca. 337 m²Wohnfläche
ca. 85 m²Zimmer
4Objektbeschreibung
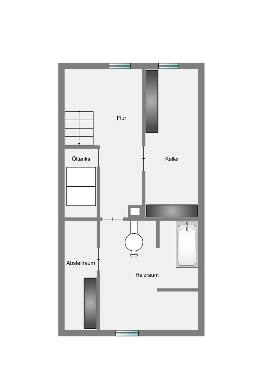
Zum Kauf steht ein Reihenmittelhaus aus dem Baujahr 1970 mit einer Wohnfläche von ca. 85 m, die sich auf drei Ebenen verteilen. Im UG ist der Keller sowie der Heizraum, der auch gleichzeitig als Bad benutzt wurde. Im EG befindet sich das Wohnzimmer, die Küche mit Essplatz sowie ein separates WC. Des Weiteren befinden sich noch zwei Zimmer im OG sowie ein Zimmer im DG. In den Garten gelangen Sie über die Küche im EG. Der Garten ist L-förmig geschnitten und hat einen Holzschopf, der als Werkstatt genutzt wurde. Es besteht die Möglichkeit einen weiteren Stellplatz zu errichten.
Die Heizung ist Baujahr 1970, es wurden 2 Kunststofffenster eingebaut, die restlichen Fenster sind Holzdoppelfenster. Das Dach wurde vor ca. 10 Jahren isoliert und neu gedeckt, ein Gasanschluss ist bereits vorhanden, eine Hebeanlage ebenfalls.
Das Objekt ist stark modernisierungsbedürftig.
Objektdaten
- ObjektartHaus
- ObjekttypReihenmittelhaus
- VermarktungsartKauf
- ImmoNr7661
- Grundstücksgrößeca. 337 m²
- Nutzflächeca. 30 m²
- Anzahl Zimmer4
- Kaufpreis270.000,00 €
- Wohnflächeca. 85 m²
- Endenergiebedarf233,9 kWh/(m²a)
- Brutto-Außenprovision in % inkl. gesetzlicher Mehrwertsteuer3,57
Kaufpreis
270.000,00 €
Energieausweis
-
EnergieausweistypBedarfsausweis
-
Gültig bis28.10.2035
-
PrimärenergieträgerÖl
-
EnergieeffizienzklasseG
Objektanfrage






